Weitere Planungen

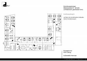
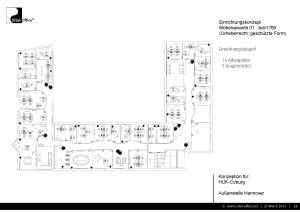
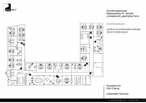
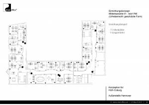
Büroplanung | Raum und Möblierungskonzept für HUK Coburg

Konzeptionelle Grundgedanken

Für eine effiziente und ergonomische (dem Menschen angepasste) Bürolandschaft ist eine ganzheitliche Betrachtung aller auf die Mitarbeiter einwirkenden Faktoren unerlässlich.

Diese gliedern sich in:

  • Raumstruktur
  • Licht
  • Pflanzen
  • Farbkonzept
  • Akustik
  • Ergonomie

In nachfolgender Darstellung zeigen wir die weniger bekannten Prinzipien ergonomischer Büroplanung auf und wiederholen nicht alle allgemein bekannten Ergonomieprinzipien. (siehe VBG Veröffentlichungen)

In der PDF Datei finden Sie detaillierte Angaben zu dem Projekt.

 

Anhänge herunterladen

Gelesen 22784 mal
(1 Stimme)
geschrieben von 27 März 2017 - 02:59:12

1. Raumstruktur:

Lange gerade Flure sind unnatürlich unangenehm, wirken erdrückend und regen „zur Flucht“ d.h. zu schnellerem Durchgehen der Engstelle an.

Natürliche Verbindungen (Flure) zwischen den Büros in Form mäandernder Raumgebilde sind langen geraden Fluren vorzuziehen.

Abwechselnd Verjüngung und Verbreiterung schafft freundlich anmutende, natürliche Räume für z.B. Begegnungen, die zu mehr Zusammenhalt im gesamten Büro beitragen.

2. Licht

Licht ist ein wesentlicher Stimmungsfaktor.

Eine abgeschattete Decke, bei der gelbliches Licht aus eingebauten „Luken“ kommt wie ein trüber bedeckter Tag mit vereinzelten Gewittern (hellen Blitzen) eher unnatürlich beängstigend wirkt.

Eine hell, mit Tageslicht (z.B. Truelight) angestrahlte Decke wirkt wie ein klarer Sonnenscheintag natürlich und angenehm.

Vital-Office Vorschlag zur Lichtplanung:

  • 1.Abgehängte Leuchten, die auch nach oben strahlen und die Decke ausreichend aufhellen.
  • 2.Tageslicht-, Vollspektrum Leuchtmittel für Gesundheit, Vitalität und Sonnenscheinstimmung
  • 3.Ausleuchtung des gesamten Raumes zur Vermeidung hoher Kontraste und dunkler Ecken
  • 4.Energiesparmassnahmen dürfen Gesundheit und Leistungsfähigkeit, durch dunkle Räume speziell in der kalten Jahreshälfte, nicht beeinträchtigen.
  • 5.In Fluren ist es besonders wichtig, dass diese durch abgehängte Leuchten kombiniert mit Wandleuchten hell und freundlich mit Tageslicht ausgeleuchtet sind.

3. Pflanzen

Pflanzen sind ebenfalls ein wesentlicher Stimmungsfaktor

und sollten deshalb geplant und koordiniert eingesetzt werden.

Büros sind mit gesunden Pflanzen in ordentlichen zum Büroambiente passenden Pflanzgefäßen und nicht mit halb verdursteten Pflänzchen in den verschiedensten Behältnissen auszustatten.

In diesem Sinne ist eine betrieblich einheitliche Regelung und Planung des Pflanzeneinsatzes und dessen Pflege erforderlich.

4. Farbkonzept:

Die einfachste Art gute Stimmung zu erzeugen ist Farbe anstelle weiß und grau ins Büro zu bringen. Beispielsweise sind an einem sonnigen Tag Farben absolut klar und leuchtend, wogegen an einem düsteren Regentag alles grau und depressiv ist.

Angrenzende Wände sollen eine leicht andere Tönung haben, um den Kontrast in den Ecken zu verstärken. Damit wird der Raum visuell leichter erfasst, was als angenehm empfunden wird.

Wandfarben in hellen Farbtönen und Pastellfarben, vorzugsweise nach Feng Shui Prinzipien abgestimmt führen zu einem harmonischen Gesamteindruck.

Tische und Mobiliar sollen in einheitlichen Farben und Materialien ausgeführt werden, die langfristig kombiniert werden können und etabliert sind. z.B.:

a) weiße Platten kombiniert mit alufarbenen, den Kontrast verstärkenden Korpusteilen

b) helle Hölzer wie z.B. Bambus, Ahorn, Esche oder Eiche kombiniert mit weiß oder alufarben.

c) dunkle Hölzer in Brauntönen wie z.B. Nussbaum kombiniert mit weiß, wobei das dunkle Holz nicht großflächig, sondern mehr als Akzent gesetzt wird.

d) Dunkle Hölzer in Rottönen wie z.B. Birnbaum, Rotbuche und Kirschbaum kombiniert mit anthrazit oder alufarben.

Der Fußboden soll eine natürliche Farbe haben, d.h., dass der Boden in einer in der Natur üblichen Farbe wie gelb, ocker, braun (Erde), grün (Grasflächen) oder grau (Stein) ausgeführt sein soll.

Blau (Wasser) gehört für normale Menschen nicht zur gewohnten Bodenfarbe und sollte vermieden werden. Zudem passen zu Blautönen wenige bräunliche Hölzer.

Unsere Empfehlung:

Tischplatten in Bambus Massivholz 3-fach verleimt, 25mm stark, mit UV-Foliengrundierung und umweltfreundlichem Wasserlack lackiert, Kanten halbrund angefräßt mit 30 Grad schräger Anfräsung im Sitzbereich.

5. Akustik

Schallschluckende Elemente, wie Teppichboden, Akustikdecke und Akustikvorhänge von Vital-Office, reduzieren die Nachhallzeit. Durch weniger Echo wird die Sprach-verständlichkeit verbessert, wodurch
die Redenden Ihre Lautstärke anpassen. Leiser wird es deshalb nur dadurch leiser, dass leiser geredet wird.

Dass man besser versteht was gesagt wird, kann wiederum als störend empfunden werden. Physikalische Messwerte sind praktisch gesehen nicht aussagekräftig.

Es ist eine ausgewogene Raumakustik anzustreben. Die Ist-Situation ist von einem Akustiker zu messen und darauf basierend Veränderungen zu planen.

Allgemein wird es am störendsten empfunden, wenn 2 Mitarbeiter sich direkt gegenüber sitzen. Diese reden sich auch beim Telefonieren direkt an. Der Schallpegel ist direkt und auf kurze Distanz sehr hoch. Weiterhin wird auch die Mimik des Redenden direkt gegenüber visuell sehr gut wahrgenommen, weshalb man sich unbewusst angesprochen fühlt. Die Störung ist daher nicht nur durch den Schallpegel, sondern auch durch die Bewegung in Form der Mimik verursacht.

Abhilfe kann geschaffen werden durch:

a) Sichtblenden zwischen den Tischen (Nachteil: Brett vorm Kopf)

b) Aufstellung der Tische in einem Winkel, so dass die Mitarbeiter sich nicht direkt gegenüber sitzen und in verschiedene Richtungen sprechen.

Für eine freundliche kooperative Bürogemeinschaft ist auf die essentiellen Bedürfnisse der Mitarbeiter nach Sicherheit und Privatsphäre (Intimbereich) Rücksicht zu nehmen.

Mitarbeiter, die ständig Ihre Privatsphäre verteidigen müssen, z.B. weil Sie in einer geraden Reihe direkt neben der Tür sitzen, reagieren langfristig aggressiver auf Ihre Kollegen und schaffen sich somit unbewusst eine Privatsphäre durch ihr Verhalten.

Beispielsweise sollte kein Mitarbeiter im „Durchzug“ sitzen, d.h., dass zwischen Tür und Mitarbeiter eine zumindest angedeutete Abgrenzung sein soll, die den Intimbereich schützt und damit auch zu mehr Konzentrationsfähigkeit ohne Störungen führt.

Das Gefühl der Sicherheit in Form eines geschützten Privatbereichs ist essentiell für stressfreies Arbeiten.

Die Innenrundung zeigt den Privatbereich an.

Das Drehen der Tischplatte optimiert die Abschirmung.

Anthropometrische - nach den Maßen des Menschen - geformte Tischplatten bieten zudem:

- Entspannte Armauflage

- Einfacher Wechsel vom Bildschirm- zum Schreibtischbereich durch leichte Körperdrehung

- Mehr Arbeitsfläche in gleichem Sicht- und Greifabstand.

Tischplatten die sich wie Massivholz anfühlen steigern Wohlbefinden und das Gefühl „Das bin ich mir, bzw. dem Unternehmen wert.

Homogenes stabiles Plattenmaterial steht für Nachhaltigkeit und Umweltschutz.

Die optionale Softtouchausprägung der Kante auf der Benutzerseite ist eine weitere Designvariante die noch mehr Komfort bietet.

Um ausreichend Beinfreiheit zu gewährleisten ist speziell bei runden Tischen darauf zu achten, dass keine Unterstellcontainer und keine CPU-Halter innerhalb des Gestellrahmens angebracht sind.

Die Gestellbreite sollte so bemessen sein, dass ausreichend Beinfreiheit auch für Drehbewegungen gegeben ist. Container und CPU-Halter sollen zwingend außerhalb des Gestellrahmens platziert werden.

Bis zur Stehhöhe verstellbare Tische sollen sich wegen Quetschgefahren nicht berühren, sondern auf Abstand zueinander stehen.

Stuhl und Tisch muss zusammen passen.

Übergroße Armlehnen verhindern, dass der Mitarbeiter mit seinen Stuhl ganz an den Tisch heranfahren kann. Dadurch wird das Sitzen „auf der Kante“ gefördert, da ansonsten der Abstand zu Bildschirm und Ordnern fürs Lesen zu groß ist.

Insbesondere bei runden Tischen mit der Funktion des Drehens innerhalb der Schreibtischplatte ist darauf zu achten, dass keine Armlehnen die Drehbewegung unterbinden und keine scharfen Rückenlehnen die Schreibtischkanten beschädigen.

Durch einen Bildschirmschwenkarm wird mehr nutzbare ununterbrochene Schreibtischfläche frei und gleichzeitig ist mehr Flexibilität in der Sitzposition, insbesondere gegen Blendungen und Spiegelungen gegeben.

Der Bildschirmschwenkarm wird vorzugsweise in einer Kabeldurchführung montiert, so dass keine Tischklemme hinten an der Tischplatte optisch und praktisch stört.

Die Elektrifizierung hat praxisgerecht zu sein. Kabelkanäle sind oft schwer zugänglich und werden deshalb in der Praxis wenig genutzt.

Es hat sich dagegen bewährt, Steckdosenleisten direkt unter der Arbeitsplatte stabil anzuschrauben, so dass Geräte leicht und sicher eingesteckt werden können. Abklappbare Kabelwannen und flexible Kabelhalter bieten dann eine einfache schnelle Möglichkeit die Kabelüberlängen und ggf. Netzteile unterzubringen.

Speziell bei Steharbeitsplätzen hat sich die Powerflex Kabelführung für die vertikale bewährt, da diese trittfest auch am Boden endlos weitergelegt werden kann.

 

 

Schreibe einen Kommentar

Bitte achten Sie darauf, alle Felder mit einem Stern (*) auszufüllen. HTML-Code ist nicht erlaubt.




Deutsche Möbel Manufaktur

Vital Office GmbH

 D-75334 Straubenhardt, Holzbachtal 204

  +49 7248 93566-90

  +49 7248 93566-97

  [email protected]

  www.vital-office.de

  Impressum und Datenschutzerklärung

 

International Export

Vital Office Hongkong Limited

 Rooms 05-15,13A/F, South Tower, World Finance Centre, Harbour City, 17 Canton Road, Tsim Sha Tsui, Kowloon, Hong Kong

  [email protected]

  www.vital-office.net

Chinese furniture manufacturing

Vital-Office Shanghai Co.,Ltd

 上海新饰力办公用品有限公司

  [email protected]

  www.vital-office.cn

 Wechat ID: Vital-Office

Login

Notice

Unser neues Internet Portal ist online und die Inhalte sind noch nicht vollständlig eingepflegt. Die bisherigen Internetseiten können Sie jedoch über nachfolgende Links noch einsehen.

Deutsch English (UK) Simplified Chinese www.vitaloffice.net (-09.2014)

Angebote nur für Gewerbetreibende. Preise zzgl. gesetzl. MwSt.