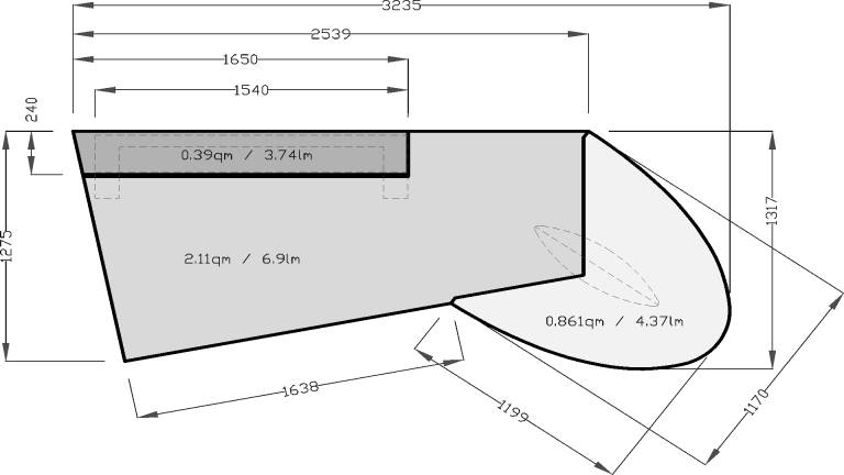
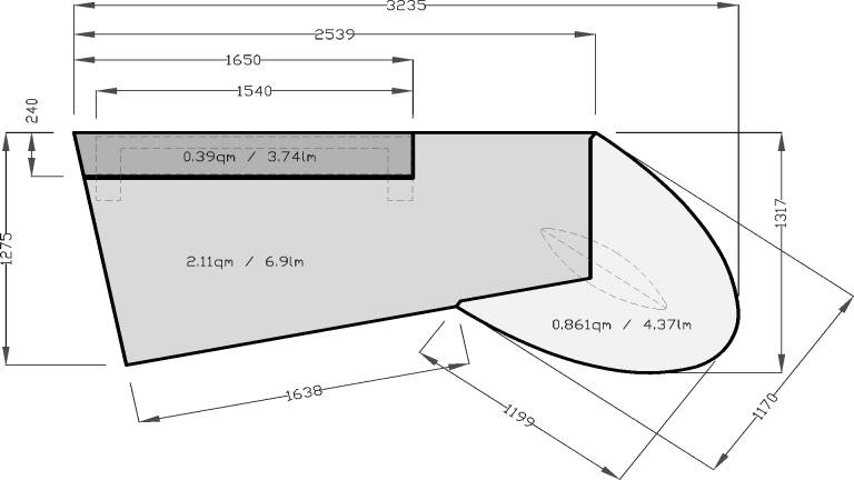
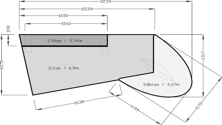
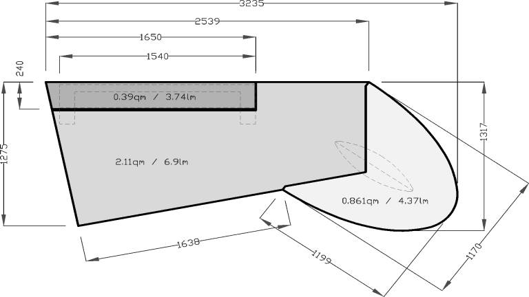
Mit unterschiedlichen Oberflächen und Farben für die drei Plattenteile, lassen sich individuelle Arbeitsplätze gestalten. Die Gliederung wirkt einem "massigen" Eindruck entgegen, so daß der Chefschreibtisch circon jet auch in kleinen Räumen einen hervorragenden Eindruck macht.
Tischplattenteile in edlen Hölzern (z.B. schweiz. Birnbaum, Platane, kanad. Ahorn, oder jap. Sen), Linoleum schwarz, Aluminiumdekor und Glas, individuell zusammengestellt.
Das Allround-Talent unter unseren individuellen Schreibtisch-Modellen.
Elliptischer Fuß und schräggestellte Rückwand mit Spiegel- / Chromeffekt (aus Aluminium hochglanzpoliert).
/a>
/a>
/a>
/a>
/a>
/a>
/a>
/a>
/a>
/a>
/a>
/a>
/a>
/a>
/a>
/a>
/a>
/a>
/a>
/a>
/a>
/a>
/a>
/a>
/a>
/a>
/a>
/a>
/a>
/a>
/a>
/a>
/a>
/a>
/a>



