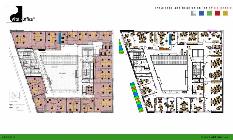
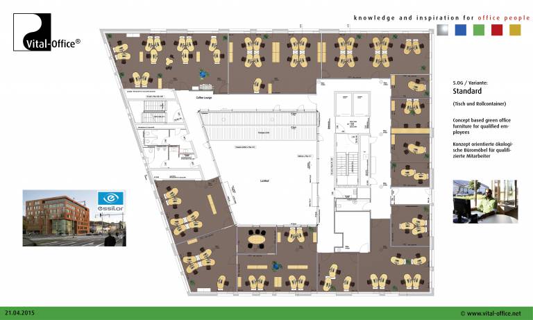
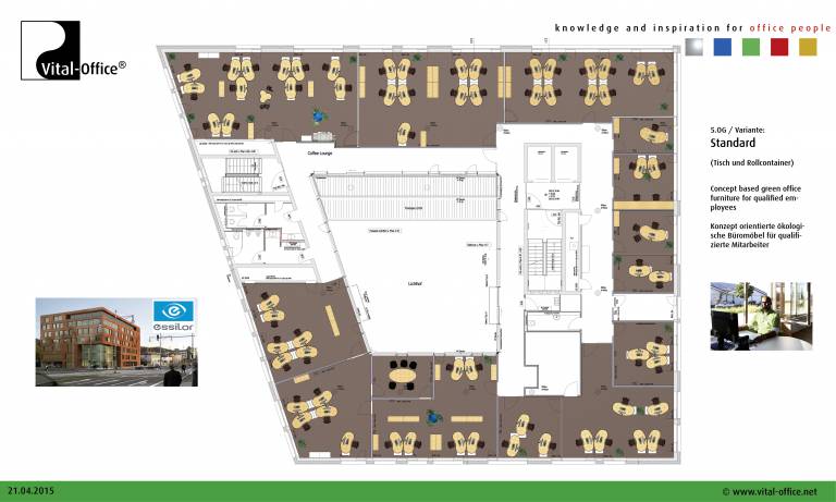
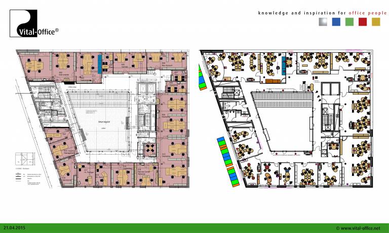
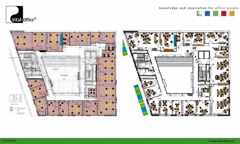
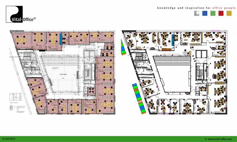
Unterschiedliche Planungslösungen für Essilor in Freiburg sind in Zusammenarbeit mit unserer FengShui Beraterin und Partnerin Frau Silke Sumana Körbs entstanden. Standard“ und „Vertikal Space Plus“ sind gelungene Bespiele dafür, dass sich Gegensätze anziehen können. Schlichte rechteckige Sideboards unterstreichen die Wirkung der ergonomischen Vital-Office Tische und umgekehrt. Bei Vertikal Space Plus ersetzen zudem Caddys auf Rollen konventionelle Standard Rollcontainer der Mitarbeiter am Arbeitsplatz. Die Caddys sind wahre Organisationstalente, bestehend aus einem Basismodul, das nach Bedarf des Mitarbeiters unterschiedlich mit Schüben und Leerfächern ausgestattet werden kann. Pflanztröge schaffen ein zusätzlich positives Raumklima.
/a>
/a>
/a>
/a>
/a>
/a>
/a>
/a>
/a>
/a>
/a>
/a>
/a>
/a>
/a>
/a>
/a>
/a>
/a>
/a>
/a>
/a>
/a>
/a>
/a>
/a>
/a>
/a>
/a>
/a>
/a>
/a>
/a>
/a>
/a>



