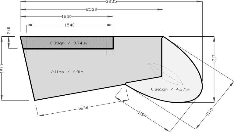
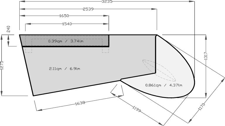
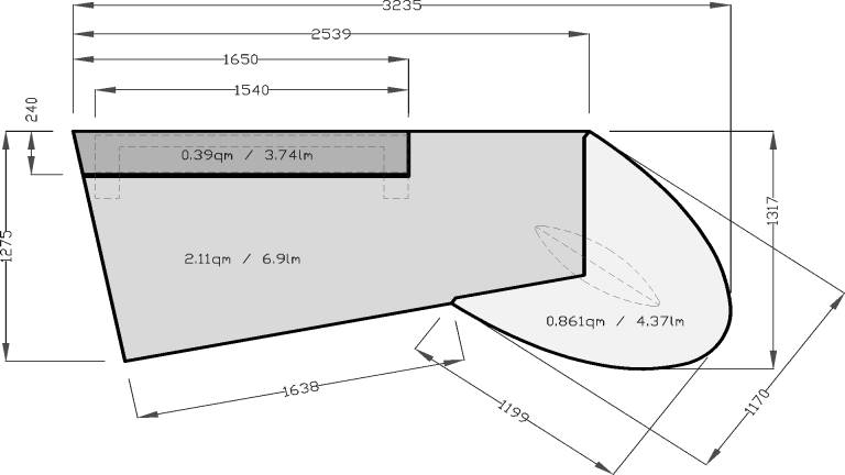
Tischplattenteile in Natursteinen (Granit, Marmor, ...), Linoleum schwarz, Aluminiumdekor oder grauweiß individuell zusammengestellt
Elliptischer Fuß schwarz lackiert, Alufarben oder chromeffekt. Schräggestellte Rückwand in Aluminium strichmatt, schwarz oder chromeffekt (Aluminium hochglanzpoliert.
Das Allround-Talent unter unseren individuellen Schreibtisch-Modellen.
/a>
/a>
/a>
/a>
/a>
/a>
/a>
/a>
/a>
/a>
/a>
/a>
/a>
/a>
/a>
/a>
/a>
/a>
/a>
/a>
/a>
/a>
/a>
/a>
/a>
/a>
/a>
/a>
/a>
/a>
/a>
/a>
/a>
/a>
/a>



